Nos services
Visualisez votre projet avant travaux grâce à nos rendus réalistes et plans clairs.
Projection avant / après
Visualiser l’existant et le projet après rénovation
Mieux comprendre les volumes, la lumière et les proportions
Comparer différentes options d’aménagement
Dossier PDF clair pour se projeter et décider sereinement
👉 Idéal pour les projets de rénovation ou de réaménagement intérieur.
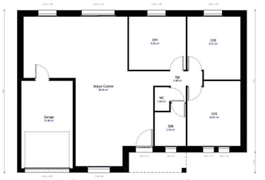
Plan schématique & ajustements
Ajustement et simplification du plan existant fourni
Lecture claire de l’organisation des espaces
Support visuel pour échanger avec les artisans ou le bureau d’études
Dossier PDF clair et compréhensible
👉 Parfait pour mieux comprendre un projet avant de lancer les démarches.
Vision globale et cohérente du projet avant travaux
Projection visuelle avant / après rénovation
Plan schématique associé au projet
Dossier PDF clair regroupant visuels et plans
👉 La solution complète pour avancer en toute confiance avant travaux.
Projection + Plan
À partir de 70€
À partir de 180€
À partir de 80€
Comment se déroule un projet ?
Chaque projet est unique.
Les projections visuelles et plans schématiques sont réalisés à partir de l’existant, avec une approche réaliste, afin de vous aider à mieux comprendre votre projet et prendre vos décisions avant travaux, en toute sérénité.
Vous nous contactez via la page contact ou par email
Nous échangeons pour bien comprendre votre projet
Réalisation de la projection et/ou plan
Livraison du dossier
Ajustements inclus si nécessaire
Une révision est incluse pour ajuster le projet si nécessaire.
Vous avancez étape par étape, sans engagement sur les travaux.


