
Visualisez votre projet avant travaux
Des rendus réalistes et plans clairs pour mieux décider
Des questions ? Consultez la FAQ
Nos services
Visualisez votre projet avant travaux grâce à nos rendus réalistes et plans clairs.
Visualiser votre projet
Projections visuelles réalistes à partir de l’existant pour vous permettre de voir votre futur espace avant travaux.
Idéal pour valider une rénovation, une extension ou un réaménagement avant de lancer les devis.


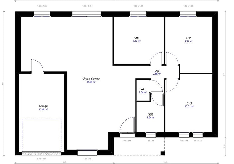
Comprendre les espaces
Plans simplifiés permettant de mieux comprendre l’organisation des volumes et la circulation.
Utile pour échanger avec les artisans et clarifier les intentions du projet.
Un support visuel clair, regroupant visuels et/ou plans,
permettant d’éviter les erreurs, de comparer les options et de décider sereinement avant travaux.
Livraison sous forme de documents numériques (PDF / images).
Décider sereinement




Qui sommes-nous ?
Chez 3Designer, nous donnons vie à vos projets avant même le premier coup de marteau.
Issu du milieu du bâtiment, je propose un service de projection visuelle avant travaux destiné à aider particuliers et professionnels à mieux se projeter dans un projet de rénovation, d’extension ou d’aménagement intérieur.
À partir de photos de l’existant ou de plans simples, je réalise des visuels réalistes et des plans schématiques, pensés comme de véritables supports de compréhension et de décision avant le lancement des travaux.
Mon approche est réaliste, cohérente et adaptée aux contraintes techniques, afin de proposer des projections fidèles à ce qui est réellement réalisable sur le terrain.



Vous avez un projet et souhaitez mieux vous projeter avant travaux ?
Réponse sous 48h · Sans engagement
Comment se déroule un projet ?
Chaque projet est unique.
Les projections visuelles et plans schématiques sont réalisés à partir de l’existant, avec une approche réaliste, afin de vous aider à mieux comprendre votre projet et prendre vos décisions avant travaux, en toute sérénité.
Vous nous contactez via la page contact ou par email
Nous échangeons pour bien comprendre votre projet
Réalisation de la projection et/ou plan
Livraison du dossier
Ajustements inclus si nécessaire
Une révision est incluse pour ajuster le projet si nécessaire.
Vous avancez étape par étape, sans engagement sur les travaux.
